APPARTEMENT FAMILIAL SUR COUR ARBOREE
PARIS 16












Réf. 243529RY4
- Surface : 89.5 m²
- Pièces : 4
816 000 €*
*honoraires inclus785 000€ hors honoraires
Honoraires : 3.95 % TTC à la charge de l'acquéreur
Partager

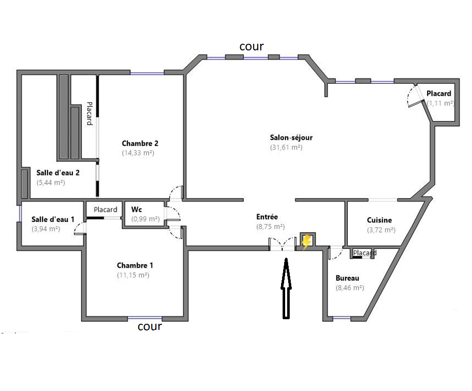
AUTEUIL SUD. RUE DE VARIZE. Dans une résidence bien entretenue de 1930 sécurisée avec gardienne, un appartement familial traversant en rez-de-chaussée de 4 pièces de 89,50 m2 carrez donnant sur 2 cours arborées au calme. Il offre une entrée, un vaste séjour avec cuisine à l'américaine, 2 belles chambres avec salle d'eau, une 3ème petite chambre ou bureau, WC séparés. Nombreux placards. Une cave complète ce bien en très bon état. Professions libérales autorisées. Local vélos. Métro Exelmans (L9) à 5 mn à pied. Charges annuelles de copropriété 4.084 euros. Copropriété de 85 lots principaux. Pas de procédure en cours. Contact direct 0652740518 Muriel Garnreiter (E.I) muriel@rez-de-chaussee.com, RSAC 2018AC00169. (3.95 % honoraires TTC à la charge de l'acquéreur.)
Copropriété de 159 lots - dont 85 lots habitation.().
(RDC) Muriel GARNREITER (EI) Agent Commercial - Numéro RSAC : - .
Descriptif du bien
- - 4 pièce(s)
- - 3 chambre(s)
- - Exposition : EO
- - 1 WC
- - 2 salle(s) d'eau
- - Cuisine Américaine Equipée
- - 1 cave(s)
- - 1 niveau(x)
- - Interphone
- - Digicode
- - Ascenseur
- - Surface habitable : 89.5m²
- - Surface Carrez : 89.5m²
- - Etat général : Très bon état
- - Etat intérieur : Très bon
- - Taxe foncière : 2232€
- - Charges de copropriété mensuelles : 340€
- - Bien en copropriété
- - Année de contruction : 1931
- - Type de contruction : Ancien
- - Nombre d'étage : 8
- - Gardien
- - Métro : 5min
Idéal profession libérale
Consommation énergétique
E319 kWh/an
Emission de GES
D44 kg/an