Ensemble professionnel d’exception avec piscine
CHARBONNIERES LES BAINS








Réf. 253793B5
- Surface : 319 m²
- Pièces : 6
1 776 000 €*
*hors honorairesPartager
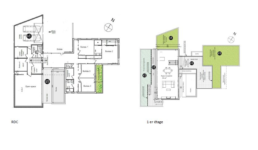
Lyon - Charbonnières Les Bains - proche gare et centre ville - possibilité de rejoindre le centre de Lyon en seulement 15 minutes, propriété d'exception avec piscine et rooftop. Espace de 319 m² sur 2 niveaux. Au rdc 3 bureaux, un open space de '51 m², deux espaces archivage et 1 salle bains. Au 2 em niveau un bel espace de réception avec une cuisine ( 95 m²) et un accès au rooftop. Atouts : Parkings, piscine, Rooftop, possibilité occupation par les dirigeants (usage mixte possible. Idéal : professions libérales, sièges sociales entreprises, espaces coworking ?Prix : 1776 000 euros + 4 % d'honoraires agence. Votre contact rez-de-chaussee.com: Alam Bendif : 07 84 54 07 71 - Rsac 848844965
Copropriété de 6 lots - dont 3 lots habitation.().
Descriptif du bien
- - 6 pièce(s)
- - 1 niveau(x)
- - Surface habitable : 319m²
- - Etat général : Excellent
- - Taxe foncière : 3300€
- - Bien en copropriété
- - Standing : Grand standing
- - Année de contruction : 2016
- - Nombre d'étage : 2
Consommation énergétique
Non renseigné
Emission de GES
Non renseigné