STUDIO RENOVÉ PAR ARCHITECTE
PARIS 16








Réf. 253787RE2
- Surface : 17 m²
- Pièces : 1
208 000 €*
*honoraires inclus200 000€ hors honoraires
Honoraires : 4 % TTC à la charge de l'acquéreur
Partager
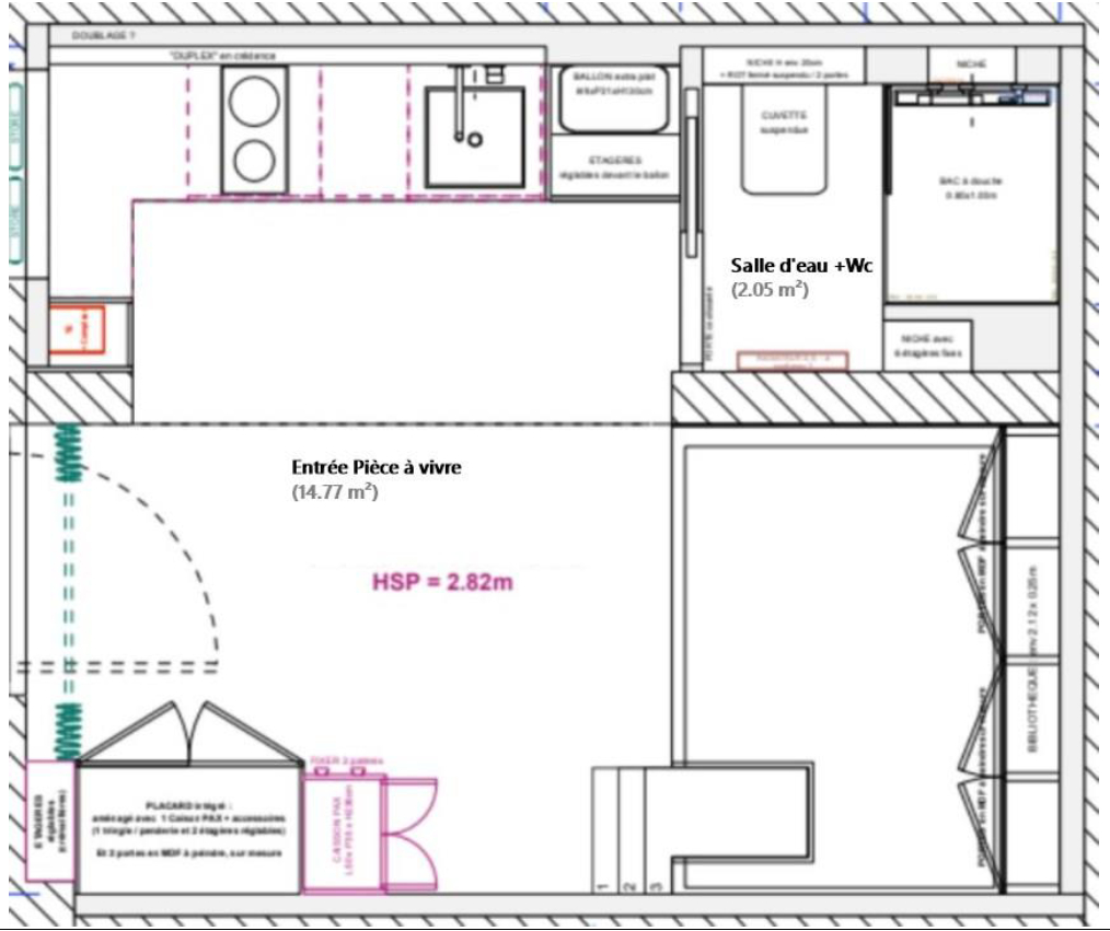
AUTEUIL. Av de Versailles ? Bld Exelmans. Au coeur des commerces. Dans une copropriété de la fin du 19è siècle. STUDIO (16, 82 m2), rénové en 2021 par architecte, sur cour, offrant une pièce à vivre avec cuisine aménagée ouverte avec fenêtre et un espace nuit surélevé sur structure bois démontable (avec rangements intégrés), une salle de douche avec wc ainsi que de très nombreux rangements supplémentaires sur mesure. Calme, parfaitement isolé, en parfait état général, sécurisé et offrant un agréable cadre de vie. Copropriété, avec une procédure en cours, de 51 lots principaux. Charges annuelles de 672 euros , soit 56 euros mensuels. Metro (L9 et 10) , RER C à 400 mètres. Votre contact direct chez REZ-DE-CHAUSSEE.COM : 06 99 88 14 20. (4.00 % honoraires TTC à la charge de l'acquéreur.)
Copropriété de 60 lots - dont 51 lots habitation.().
Descriptif du bien
- - 1 pièce(s)
- - 1 niveau(x)
- - Surface habitable : 17m²
- - Taxe foncière : 724€
- - Charges de copropriété mensuelles : 56€
- - Bien en copropriété
- - Nombre d'étage : 6
Consommation énergétique
D315 kWh/an
Emission de GES
B9 kg/an